Apartament 3 camere - 67,30 mp + balcon de 3,59 mp -  zona Selimbar — fotografie 1 din 61 / 6

Descriere

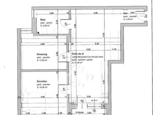
Va propunem spre vanzare un apartament cu 3 camere, cu o suprafata utila de 67,30 mp si balcon de 3,59 mp, amplasat in Selimbar, Zona Pictor Brana.

Compartimentare:
- hol;
- living cu bucatarie + loc de luat masa;
- 2 dormitoare;
- baie;
- balcon.

Avantaje:
- ansamblu rezidential nou;
- finisat la cheie - proiectul si amenajarea se va face cu ajutorul unui designer de interior, in functie de nevoile si dorintele fiecarui client;
- la numai cateva minute de Shopping City;
- loc de parcare inclus in pret;
- baie cu geam de aerisire;
- izolatie cu vata bazaltica;
- balcon.

Apartamentele se pot preda la stadiul de gri avansul minim fiind de 20%.
Termenul de predare este primavara 2026.

Iti doresti mai mult decat o simpla locuinta? Noi suntem aici pentru a-ți oferi cele mai bune soluții. Oferim servicii de DESIGN SI AMENAJARI INTERIOARE, PROPERTY MANAGEMENT, REGIM HOTELIER, HOME STAGING, VIRTUAL INVESTMENT, SERVICII DE CURATENIE.

Specificații tehnice

Suprafață utilă67.3 m²
Număr camere3 cam.
Etaj2 et.
An construcție2025
Tip imobilBloc

Anunțuri similare

140.000 EUR
NouŞelimbăr, Sibiu
0 vizualizări