Proprietar-Hlincea, Apartament 2 camere, 65mp, mobilat-utilat, parcare — fotografie 1 din 61 / 6

Descriere

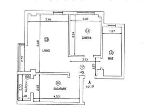
Proprietar ofer spre vânzare Apartament cu 2 camere, etajul 4/5 cu lift, 65mp, mobilat-utilat complet si cu loc de parcare intabulat in proprietate, in Hlincea, la 1.8km de Lidl, Aumovio, Poitiers.

Apartamentul se remarca prin:

* Tavan înalt cu înălțimea de 2.85 metri;

* Suprafețe vitrate mari, geamuri de aproximativ 2 metri în living;

* Compartimentare practică și aerisită.

* Suprafață mare, 65mp.

* Posibilitate transformare în apartament cu 3 camere;

* Living de 24mp;

* Loc de parcare intabulat in proprietate, in curtea interioară.

* Mobilat utilat complet;

* Încălzire în pardoseală; * Aer condiționat;

* Centrala proprie;

* Lift;

* Parc de joacă pentru copii în curtea blocului.

* Orientare Sud - Est.

* Geam la baie.

Locatie Google Maps: Complex Rezidențial Hlincea

Tur virtual 3D disponibil:

Pentru mai multe detalii nu ezitați sa mă contactați.

Specificații tehnice

Suprafață utilă65 m²
Număr camere2 cam.
Etaj4 et.
An construcție2017
Tip imobilBloc

Anunțuri similare

120.000 EUR
UtilizatCiurea, Iaşi
0 vizualizări