Apartament 4 camere 135 mp Zorilor Zona strazii Eftimie Murgu! — fotografie 1 din 61 / 6

Descriere

Va prezentam spre vanzare un apartament cu 4 camere, localizat in Cluj-Napoca, aproape de strada Eftimie Murgu.

Imobilul este amplasat intr-o zona bine conectata, in apropiere de scoli, gradinite, parcuri, centre comerciale si mijloace de transport in comun.
In imediata apropiere regasim:

- Sigma Shopping Center ;
- UMF;
- UTCN;

Locatia ofera acces facil catre principalele puncte de interes din oras, fiind ideala atat pentru locuit, cat si pentru investitie.
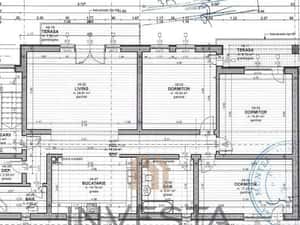
Apartamentul detine o suprafata utila de 135 mp + 3 balcoane si este situat la etajul 2 din 3 , intr-un imobil edificat in 2010.
Dispune de orientare N-S-E, iar compartimentarea este decomandata, fiind organizat astfel:

- 3 dormitoare;
- living impreuna cu bucatarie;
- 2 bai;
- 3 balcoan;
- 1 hol;
- 1 debara;

Apartamentul necesita renovare.

Confortul termic este asigurat de centrala termica proprie , cu distributie a caldurii prin calorifere.

Optional, se poate achizitiona si un loc de parcare, fie exterior la 8000 euro, fie in parcarea subterana la pretul de 10000 euro.

Apartamentul este liber de sarcini, iar ca modalitate de plata se accepta atat plata integrala, cat si achizitia prin credit ipotecar.

Pentru mai multe detalii si programarea unei vizionari, nu ezitati sa ne contactati.

ID intern: CP2982951

Specificații tehnice

Suprafață utilă135 m²
Număr camere4 cam.
Etaj2 et.
An construcție2010
Tip imobilBloc

Anunțuri similare

337.000 EUR
UtilizatCluj-Napoca, Cluj
0 vizualizări