Apartament 2 camere mobilat si utilat, loc de parcare, Biruintei — fotografie 1 din 61 / 6

Descriere

Apartament 2 camere – modern, spațios și gata de mutare!
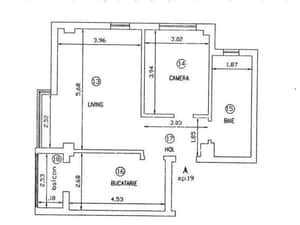
Îți propunem spre vânzare un apartament deosebit cu 2 camere, decomandat, având o suprafață generoasă de 59 mp, situat într-un imobil construit în 2020 – ideal pentru locuit sau investiție.
Detalii principale:
Compartimentare: decomandat – confort și intimitate
Suprafață utilă: 59 mp
Construcție modernă (2020)
Se vinde complet mobilat și utilat, exact ca în poze
Finisaje moderne și de calitate
Apartamentul este luminos, bine întreținut și pregătit pentru mutare imediată – fără bătăi de cap sau costuri suplimentare!
Opțional loc de parcare inclus
Prețuri:
114.000 € – fără loc de parcare
120.000 € – cu loc de parcare inclus
Ideal pentru cei care caută confort, liniște și un spațiu modern într-o zonă plăcută.
Pentru mai multe detalii sau vizionare, nu ezita să ne contactezi!
Comision standard

Specificații tehnice

Suprafață utilă59 m²
Număr camere2 cam.
Etajfloor_7, /7 et.
An construcție2020
Tip imobilapartment

Anunțuri similare

114.000 EUR
UtilizatLeordeni, Ilfov
0 vizualizări